Neu
Das Fenster als Bestandteil einer Trockenbauwand.
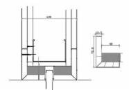
Festverglasungen in Trockenbauwände schaffen Licht und Optik , nicht immer ein Preiswertes Vergnügen.
Warum nicht einen Rahmen aus Gipskarton ?
Neben unseren bewährten U-Schalen für freie Wandenden und Öffnungen in Gipskartonwänden
stellen wir Ihnen unser neues Produkt vor.
Das Festverglasungsprofil aus GK Faltungen
Ihre Vorteile
Harmonisches einfügen als Wandbestandteil
Kein Kanten Eckschutzprofil nötig - Glasleisten aus Doppelprofile GK Faltteil
Oberflächenbeschichtung wie die Wand
Leichte Bearbeitung , da Gipskarton
Alle Längen und Breiten sind möglich, nur Stosskanten verspachteln
Kurzfristige Lieferzeiten

----------------------------------------------------------------------------------------------------------------------------------------
Auch als GK Faltteil für G 30 Verglasungen
in Trockenbauwände
Die AbZ der Hersteller ( Glas ) ist zu beachten.